
Stiftung Lebenswertes Liechtenstein

JAHR
2022
STANDORT
Vaduz
KUNDE
Stiftung Lebenswerter Liechtenstein
Die Stiftung Lebenswertes Liechtenstein (SLL) ist eine gemeinnützige Stiftung, getragen von Privatpersonen, Unternehmen und Institutionen mit engem Bezug zu Liechtenstein. Ziel der Stiftung ist es, substanzielle Beiträge für eine nachhaltige Zukunft innerhalb und über die Landesgrenzen hinaus zu leisten.

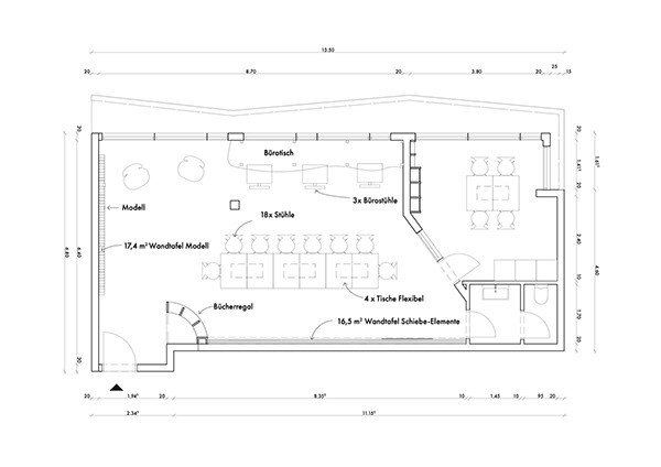
Unsere Aufgabe bestand darin, den Hauptsitz der Stiftung umzubauen und in einen flexiblen Raum zu transformieren, der sowohl als Arbeitsplatz für ein kleines Team als auch als Veranstaltungsraum für bis zu 15 Personen genutzt werden kann.

Das Innenraumkonzept basiert auf dem Zusammenspiel von festen und flexiblen Elementen. Die fixen Elemente stellen die grundlegende Funktionalität unabhängig von der jeweiligen Nutzung sicher, während die flexiblen Elemente eine Anpassung an unterschiedliche Anforderungen ermöglichen und die räumliche Qualität je nach Anlass erweitern.


Der Eingang wird durch eine Kombination aus Bibliothek und Garderobe gefasst. An der Stirnwand hängt ein stilisiertes Geländemodell Liechtensteins, das sowohl der Orientierung der SLL-Projekte als auch der Arbeit in Workshops dient. Auf der gegenüberliegenden Seite präsentieren fünf verschiebbare Tafeln die fünf thematischen Schwerpunkte der Stiftung. Sie dienen als Pinnwände und geben, zur Seite geschoben, eine magnetische Weisswand frei.
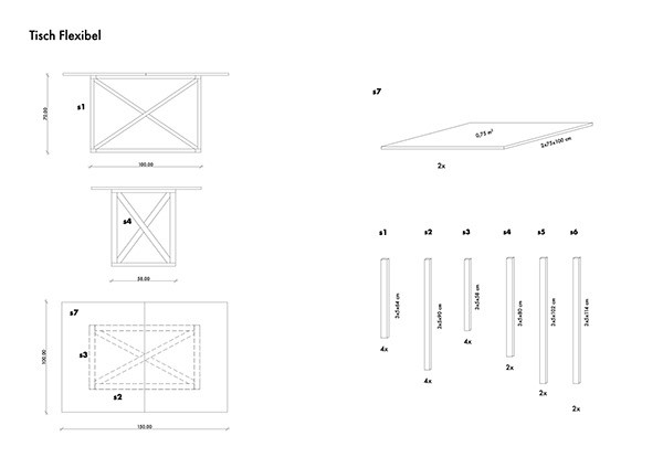
Flexible Möbelelemente können unterschiedlich angeordnet werden und werden unter anderem als Sitz- und Diskussionstisch genutzt.
© Julian Konrad Photography
PLÄNE







