
Atelier Gapont I

JAHR
2015
STANDORT
Triesen
KOLLABORATION
Hansjörg Hilti and Martha Büchel-Hilti
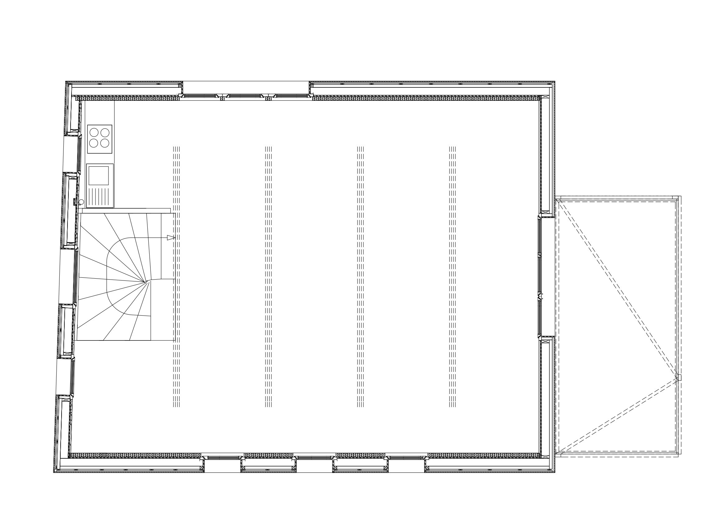
Atelier Gapont I entstand 2012 als Wiederaufbau eines durch einen Brand zerstörten Stalls.

Das Gebäude ist aus vorgefertigten Massivholzelementen errichtet, die zugleich Tragstruktur und Innenoberfläche bilden.

Der Entwurf folgt dem Prinzip maximaler Einfachheit, um maximale Flexibilität zu ermöglichen, da der Raum für unbekannte zukünftige Transformationen konzipiert wurde.
Es wurde zum ersten Standort von Atelier Gapont, an dem sich das Atelier von einem Laptop auf dem Küchentisch zu einem kleinen Team entwickelte.

PLÄNE








