
Holzhaus V

JAHR
2019 - 2022
STANDORT
Schaan
Holzhaus V verwandelt einen Teil eines Reihenhauses in ein Dreigenerationenhaus.

Der ursprüngliche Bau wurde 1980 als Holzrahmenkonstruktion errichtet.

Zwei bestehende Geschosse wurden umgebaut und zwei weitere Geschosse darauf aufgesetzt.
Der Ansatz erzeugte verschachtelte Raumstimmungen – von der Dachterrasse bis zum erhöhten Wohnraum.

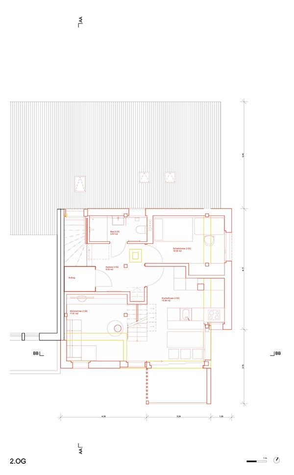
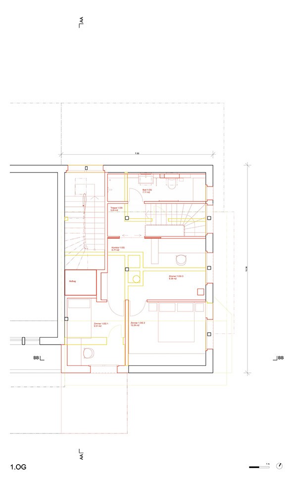
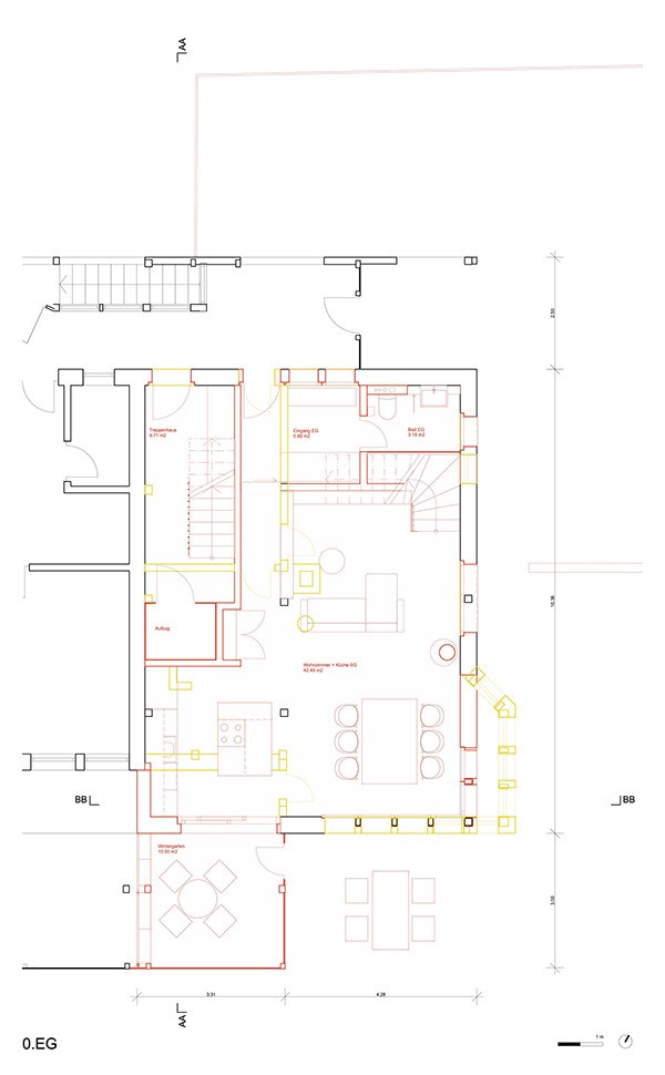
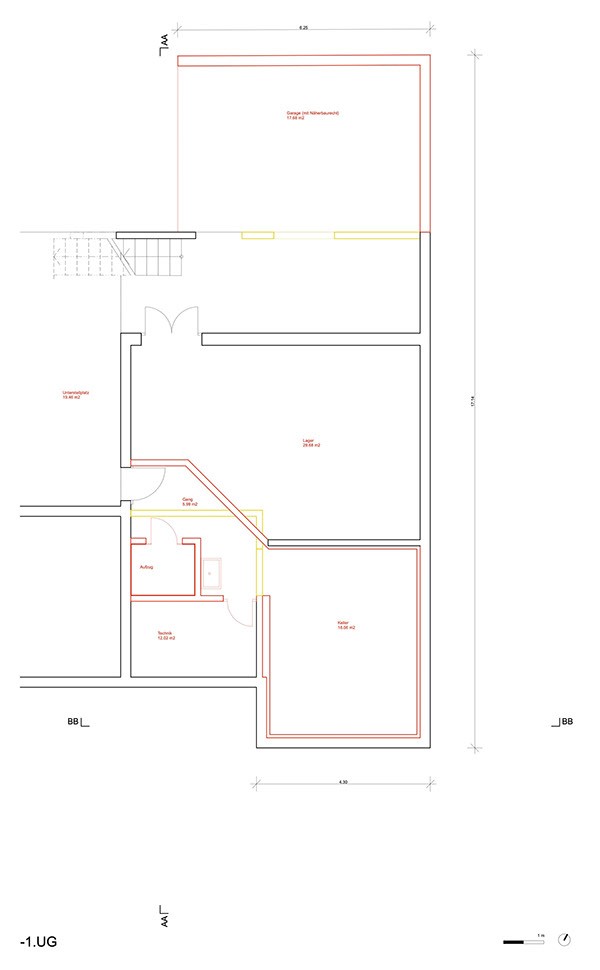
PLÄNE













