
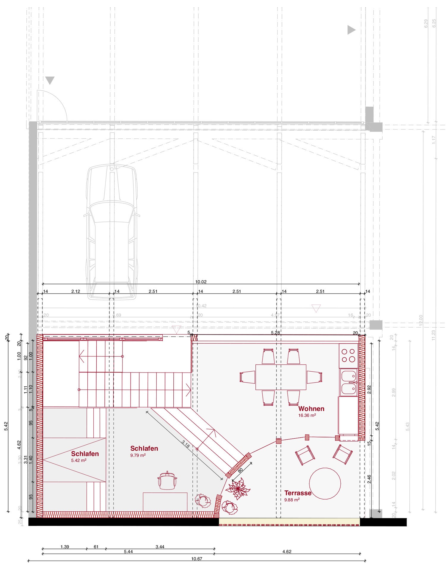
Leben IN EINER FABRIK

JAHR
2023
STANDORT
Balzers
KUNDE
Privat

Wir glauben an die Arbeit mit dem bestehenden Stadtgefüge und an gemischt genutzte Quartiere. In Balzers hatten wir die Möglichkeit, Teile einer Industriehalle in eine Wohnung umzuwandeln.

PLÄNE











